• 2 ambientes. Contrafrente. Excelente. Balcón. Ideal Airbnb

    Araoz 2873 - Botánico - Botánico, Capital Federal, Capital Federal
    • 1 Dorm
    • 1 Baño
    • 44.00 mts²
  • USD 115.000

    En venta

Descripción

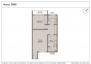
Departamento de 2 ambientes a la venta en una zona de categoría a una cuadra del Parque Las Heras. Esta ubicado en el 1er piso, contrafrente, en muy buen estado recientemente. Ingresamos al departamento directamente al living comedor, que ventila hacia el aire y luz del edificio. Desde el living a la derecha a la cocina, completa, a gas y un poco mas adelante, el lavadero. Desde el living a la izquierda encontramos el baño y luego la habitación, que ventila hacia el balcón Abre sus ventanas hacia el patio del edificio, cuyo verde sorprende por su frondosidad y frescura. Este departamento es el que más aprovecha esta ventaja del edificio, al disponer de una vista y tranquilidad únicas. Es una unidad clásica, de muy buena construcción, reacondicionado hace unos años, es apto crédito, ideal para parejas nuevas o nuevos propietarios que desean acceder a su primera vivienda en uno de las mejores zonas de la ciudad. Esta a pocos pasos de la Plaza Las Heras, a una cuadra de la Avenida Las Heras, en las inmediaciones encontramos infinidad de colegios, sanatorios, locales gastronomicos, incluso el Shopping Alto Palermo esta dentro de un radio de pocas cuadras. Toda la información del aviso, incluyendo medidas, precio, impuestos, servicios, etc. son estimativos, sujetos a modificación y no vinculantes, según lo dispuesto en el art. 973, Cód. Civ. y Com.

Detalles

  • Código: KP462524
  • Categoría: Departamentos
  • Estado: Activa
  • Venta: USD 115.000
  • Dirección: Araoz 2873
  • Zona: Botánico
  • Barrio: Botánico
  • Ciudad: Capital Federal
  • Provincia: Capital Federal
  • País: Argentina
  • Apto credito:
  • Ambientes: 2
  • Dormitorios: 1
  • Baños: 1
  • Piso: 1
  • Pisos en el edificio: 9
  • Superficie total: 44.00
  • Superficie cubierta: 42
  • Superficie descubierta: 4
  • Metros de frente: 10.00
  • Metros de fondo: 38
  • Año de construcción: 1975
  • Expensas: ARS 170.000

Mapa

Recorrido 360

Video